Junto a la optimización de los recursos existentes se propone la creación de nuevas instalaciones
Los socialistas apuestan por la creación de una Ciudad Deportiva que integre usos deportivos, de ocio y turísticos
Una de las propuestas del PSOE de Calp de cara a una futura acción de gobierno es la creación de una Ciudad Deportiva remodelando y optimizando las instalaciones actuales que permita hacer del deporte un elemento integrador para fomentar el ocio juvenil y familiar, y atraer eventos deportivos que dinamicen turísticamente el municipio.
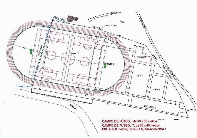
Para ello se rediseñarán las actuales instalaciones deportivas creando un segundo campo de fútbol, dos pistas de fútbol 7 y una pista de atletismo homologada. Además, los socialistas han elaborado una plan de optimización de los recursos deportivos con el fin de abrir las instalaciones deportivas a todos los ciudadanos, para ello se plantean convenios de uso en horarios más amplios y la apertura de las instalaciones durante el fin de semana para que las familias, los jóvenes, los niños puedan disfrutar de la práctica deportiva.
Los socialistas señalan que en estos últimos cuatro años la gestión municipal en materia de deporte ha sido totalmente deficiente, descuidando el mantenimiento de las instalaciones y no resolviendo la actual situación de demanda de nuevas disciplinas deportivas y de nuevas instalaciones.
Pero los socialistas calpinos quieren ir más allá, su objetivo es hacer del deporte local un elemento de convivencia y de las instalaciones deportivas un punto de encuentro de los calpinos, y para ello proponen la organización de eventos deportivos, culturales y de ocio. Además se contempla colaborar con los empresarios del sector turístico con el fin de ofertar la Ciudad Deportiva para la celebración de encuentros y entrenamientos y estimular la celebración de eventos deportivos que enriquezcan la oferta turística.
Para ello se rediseñarán las actuales instalaciones deportivas creando un segundo campo de fútbol, dos pistas de fútbol 7 y una pista de atletismo homologada. Además, los socialistas han elaborado una plan de optimización de los recursos deportivos con el fin de abrir las instalaciones deportivas a todos los ciudadanos, para ello se plantean convenios de uso en horarios más amplios y la apertura de las instalaciones durante el fin de semana para que las familias, los jóvenes, los niños puedan disfrutar de la práctica deportiva.
Los socialistas señalan que en estos últimos cuatro años la gestión municipal en materia de deporte ha sido totalmente deficiente, descuidando el mantenimiento de las instalaciones y no resolviendo la actual situación de demanda de nuevas disciplinas deportivas y de nuevas instalaciones.
Pero los socialistas calpinos quieren ir más allá, su objetivo es hacer del deporte local un elemento de convivencia y de las instalaciones deportivas un punto de encuentro de los calpinos, y para ello proponen la organización de eventos deportivos, culturales y de ocio. Además se contempla colaborar con los empresarios del sector turístico con el fin de ofertar la Ciudad Deportiva para la celebración de encuentros y entrenamientos y estimular la celebración de eventos deportivos que enriquezcan la oferta turística.




















Normas de participación
Esta es la opinión de los lectores, no la de este medio.
Nos reservamos el derecho a eliminar los comentarios inapropiados.
La participación implica que ha leído y acepta las Normas de Participación y Política de Privacidad
Normas de Participación
Política de privacidad
Por seguridad guardamos tu IP
216.73.216.10